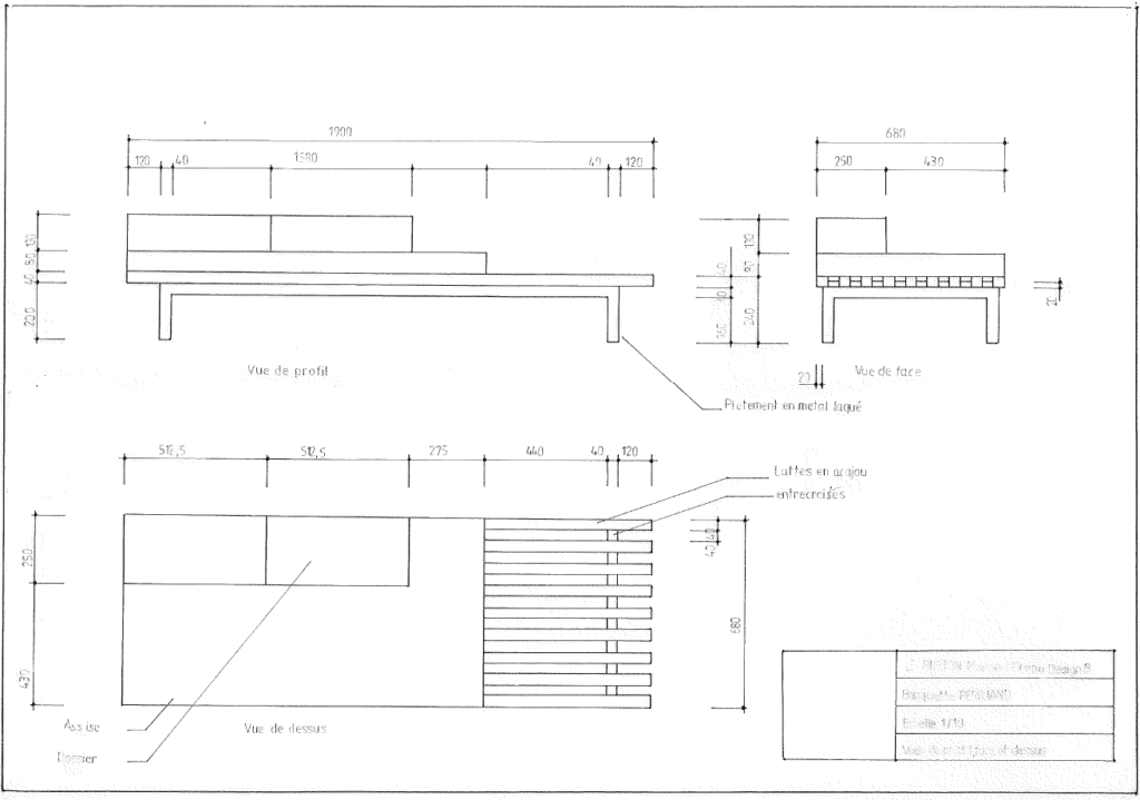
Dans le cadre du cours de dessin d’objet, les étudiants en Prépa Design devaient réaliser un projet portant sur la banquette conçue par l’architecte et designeuse française Charlotte Perriand en 1960. À partir du jeu de plans fournis, ils devaient produire, à l’échelle 1/10 et sur un format A3 horizontal, les différentes vues techniques de l’objet, à savoir une vue en plan, une vue de côté et une vue de face. Le travail devait intégrer une cotation précise ainsi que l’utilisation d’une terminologie adaptée, incluant notamment les éléments tels que les lattes en acajou, le piétement en métal laqué, les entretoises, l’assise et le dossier. Une attention particulière devait être portée au respect des épaisseurs de traits ainsi qu’à la cohérence des correspondances entre les différentes vues, conformément aux règles de projection en dessin technique.


